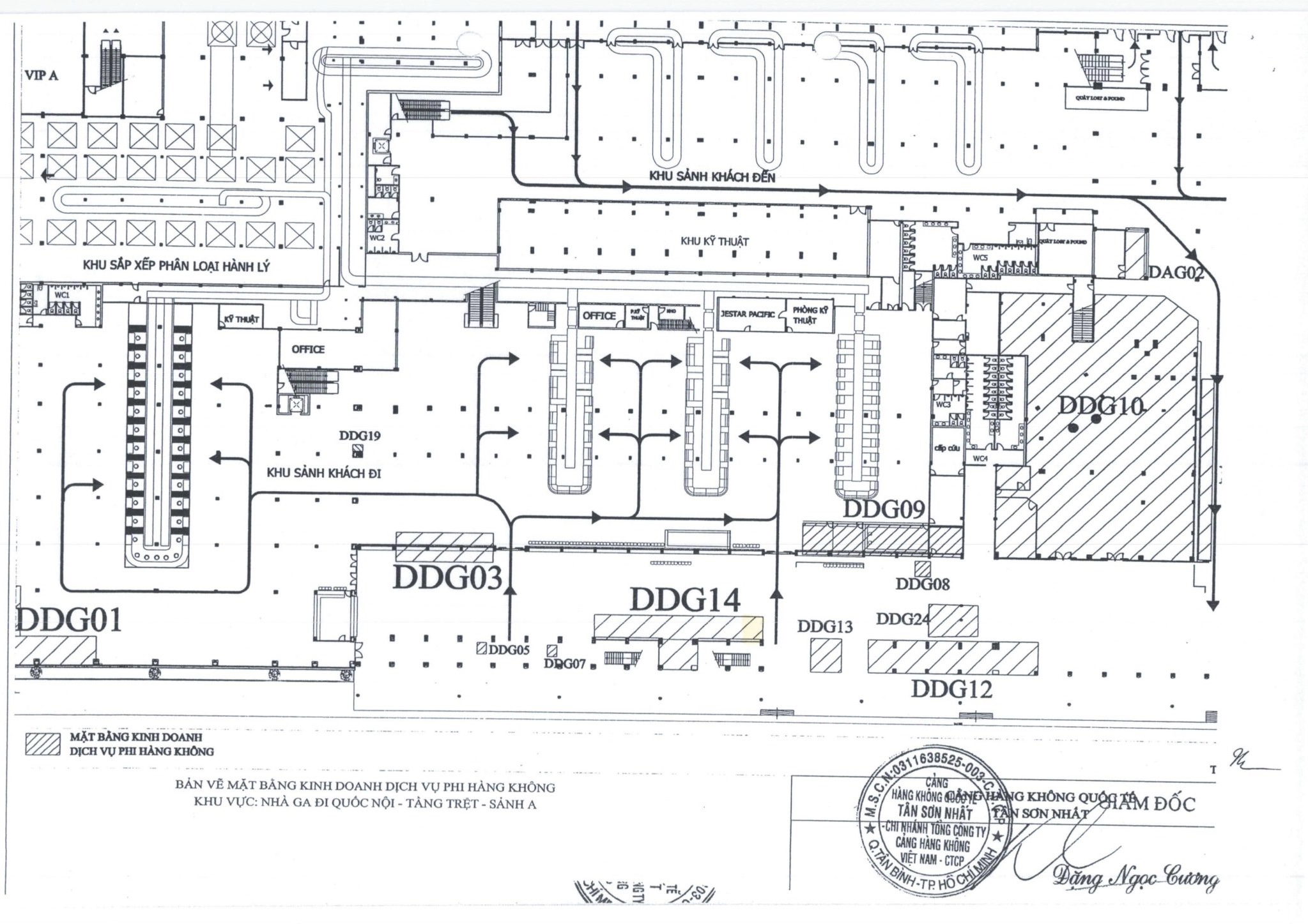
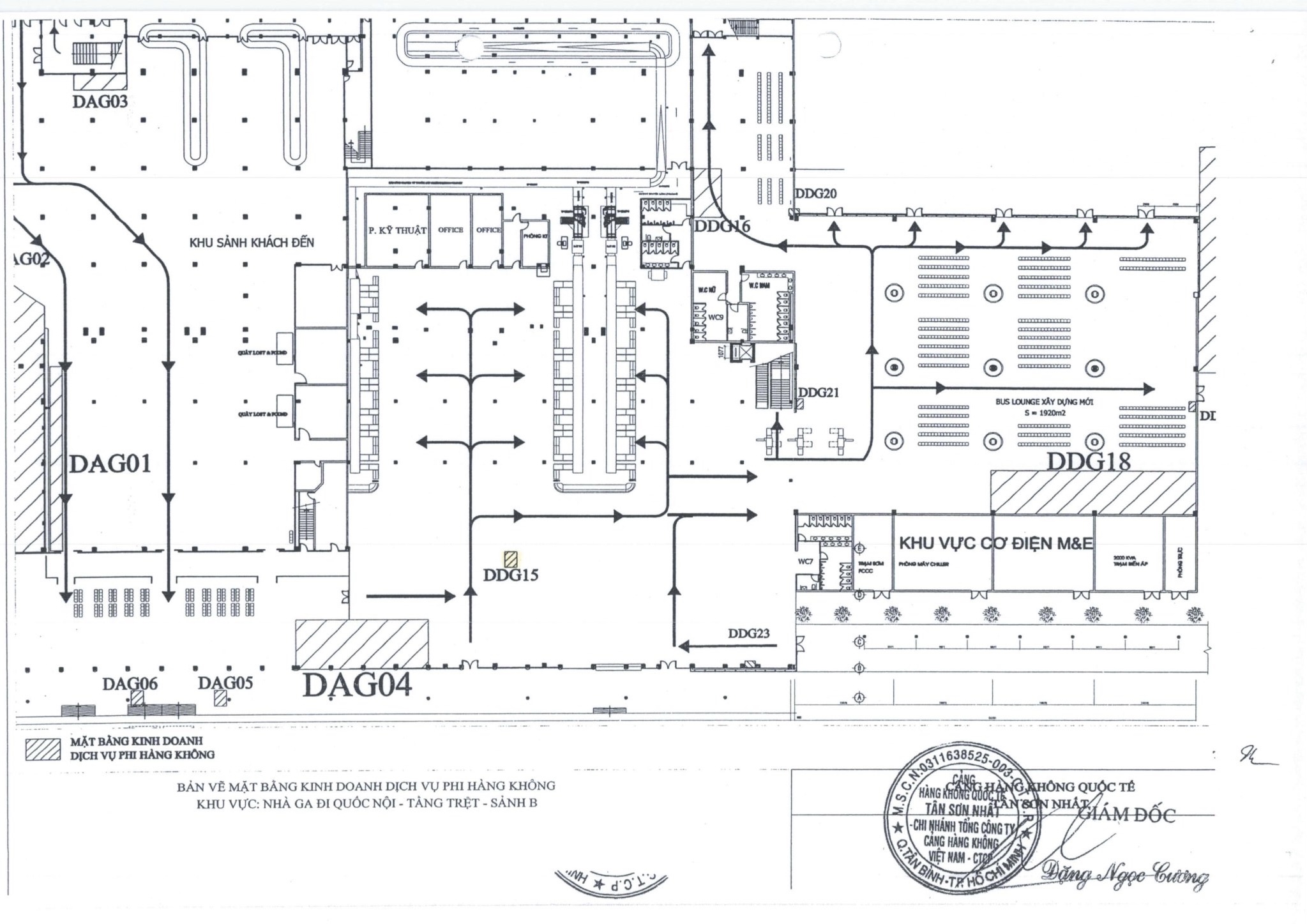
Hiện nay, Cảng hàng không quốc tế Tân Sơn Nhất chúng tôi đang có nhucầu tìm đối tác tham gia hạng mục “Hợp tác kinh doanh dịch vụ đóng gói hành lý tại khu vực sảnh A (mã vị trí DDG14) và sảnh B (mã vị trí DDG15) nhà ga quốc nội đi - Cảng hàng không quốc tế Tân Sơn Nhất”. Cụ thể:
|
Stt |
Vị trí |
Mã vị trí |
Diện tích (m2) |
SL máy đóng gói (máy) |
Ngành nghề |
|
1 |
Khu vực sảnh A quốc nội đi (đối diện quầy thủ tục đảo F) |
DDG14 |
03 |
01 |
Dịch vụ đóng gói hành lý |
|
2 |
Khu vực sảnh B quốc nội đi |
DDG15 |
03 |
01 |
Dịch vụ đóng gói hành lý |
➢ Vị trí theo sơ đồ bản vẽ đính kèm
Cảng hàng không quốc tế Tân Sơn Nhất trân trọng kính mời Quý công ty quan tâm và tham gia hợp tác kinh doanh theo thời gian và tại địa điểm sau:
1. Thời gian
- Thời gian phát hành Hồ sơ mời tham gia: Từ 10h00' sáng ngày 23/6/2021.
- Thời hạn nộp Hồ sơ đề xuất: Đến 10h00' sáng ngày 02/7/2021.
2. Địa điểm phát hành Hồ sơ mời tham gia và nộp Hồ sơ đề xuất
Phòng Kinh doanh (P.211) –
Cảng hàng không Quốc tế Tân Sơn Nhất, P.2, Q.Tân Bình, Tp.HCM.
Điện thoại: 028.3848.5383 (Etx:3357); Fax: 028 38488279
Người liên lạc: Bà Vũ Hương Giang (Tel: 0933.899.299)
Email: vuhuonggiangtia@gmail.com
Trân trọng kính chào./.

